首页
服务中心
产品
公共安全设备
网络安全设备
电子计算机
终端
智能化系统
自动化系统
服务
我们的项目
我们的服务
我们的案例
合作客户
证书
关于我们
联系我们
我们的项目
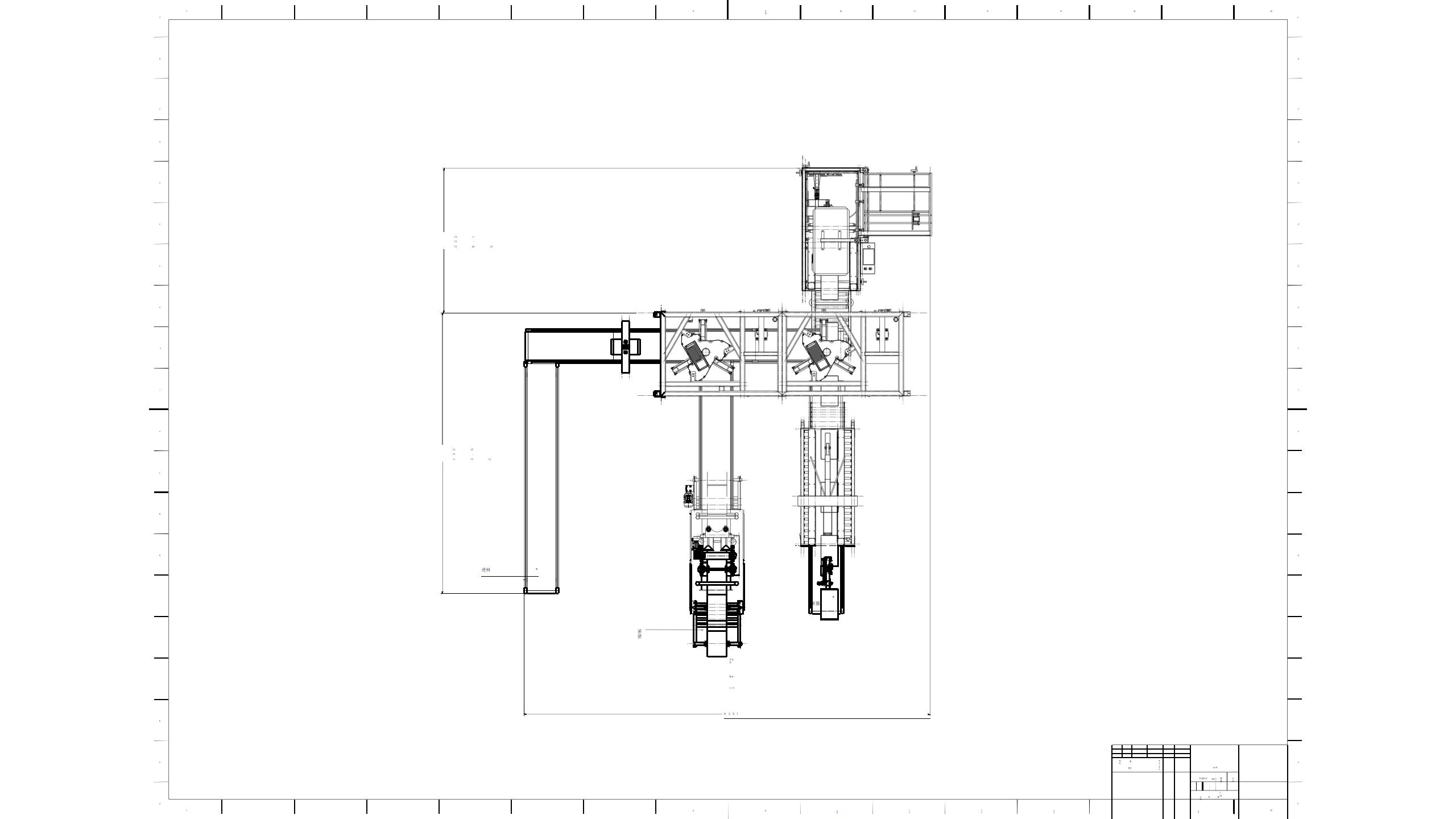
瀚宇电商物流自动化分拣
2025-09-12
上一篇:智能人脸识别与AGV联动悬浮门系统方案
下一篇:服务器超融合方案
Loading...
Home
Phone
Message
Top
Phone
18334377060
QQ
2319602349
WeChat
Top